1 908 770,00 PLN (21 500,00 PLN)

Apartament dwupoziomowy - Gdańsk Długie Ogrody

Mieszkanie na sprzedaż,
Gdańsk, Długa Grobla

Kontakt z agentem: Patron Nieruchomości
Opis nieruchomości

Dolne Miasto i Długie Ogrody w Gdańsku znów pięknieją. Powstaje tu nowy budynek w stylu gdańskich kamienic. Z lokalami usługowymi na parterze i 125 nowoczesnymi apartamentami od dwudziesto kilku metrowego studia po dwupoziomowy, 5 pokojowy apartament lub 3 pokojowy z zimowym ogrodem. Charakter dawnych kamienic podkreśla nie tylko ceglana elewacja ale także wewnętrzny dziedziniec z zielonym mini parkiem jak podwórza dawnych kamienic starego Gdańska.
To wszystko w cichej i spokojnej okolicy tylko kilka minut piechotą od Starówki, Motławy, tętniącej życiem Wyspy Spichrzów z licznymi restauracjami i kafejkami a także Ołowianki ze słynną Filharmonią Bałtycką.
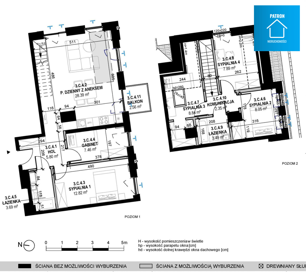
Patron Nieruchomości ma przyjemność zaprezentować Państwu 5- pokojowy, dwupoziomowy apartament o powierzchni 88,78 m2 z balkonem , położony na trzecim i czwartym piętrze w Gdańsku Dolnym Mieście.

Apartament posiada okna i balkon od strony wewnętrznego dziedzińca, o ekspozycji wschodniej i południowej .

Na poziome ”0” znajdują się - Pokój dzienny z aneksem kuchennym i z wyjściem na balkon, gabinet, sypialnia i łazienka.
Całość dopełnia obszerny hall ze schodami na poziom „1”
Na nim znajdują się trzy sypialnie z miejscami na szafy i wygodna łazienka.
Wszystkie mieszkania i sam budynek charakteryzują się wysoką jakością materiałów wykończeniowych a klimatyzacja w lokalach jest standardem.
To doskonałe miejsce do mieszkania na stale, jako second home na wakacje czy weekendowe pobyty nad morzem lub jako wieloletnia inwestycja na wynajem długoterminowy.

Termin oddania: budynek będzie gotowy pod koniec 2026 roku.

Cena miejsca postojowego w hali garażowej od 55 000 do 75 000 pln brutto 
Cena komórki lokatorskiej: 10 000 zł brutto / m2,

WAŻNE!!
Zakup bez prowizji dla biura i bez podatku PCC !!!

W ofercie biura znajdą się również inne mieszkania w tej lokalizacji jak i w innych na terenie Gdańska.

W razie pytań dotyczących powyższej nieruchomości zapraszam do kontaktu, a jeżeli ta oferta nie spełnia Państwa oczekiwań, biuro „Patron Nieruchomości” pomoże w znalezieniu tej właściwej.

Oferujemy również pomoc w uzyskaniu finansowania zakupu mieszkania oraz kompleksową usługę architekta wnętrz i wykończenia pod klucz .
Załączone zdjęcia przedstawiają przykładowe aranżacje.

„Prezentowana oferta ma charakter informacyjny, nie stanowi oferty handlowej w rozumieniu Art. 66 par. 1 Kodeksu Cywilnego.

Na mocy ustawy z dnia 4 lutego 1994 roku o prawie autorskim i prawach pokrewnych (Dz. U. Z 1994 roku Nr 24, poz. 83 z późn. zm.) kopiowanie treści oraz fotografii bez pisemnej zgody biura „Patron Nieruchomości”, stanowi naruszenie majątkowych praw autorskich oraz podstawę do odpowiedzialności karnej przewidzianej przepisami Art. 116 par. 1- 4 w.w. ustawy.”.

Mapa
Kontakt z agentem

Patron Nieruchomości

Małgorzata Gosz
Nieprawidłowy adres E-mail

Strona korzysta z plików cookie w celu realizacji usług zgodnie z Polityką prywatności. Możesz określić warunki przechowywania lub dostępu do cookie w Twojej przeglądarce.